Solarcarport Komplettset für 2 Autos inkl. 15 Solarmodule & 6 kW Growatt Wechselrichter | Optional: Speicher, Wallbox & DC-ÜSS | Solamount
Lieferzeit: 10 Tage
Dokumente
Produktinformationen Halterung
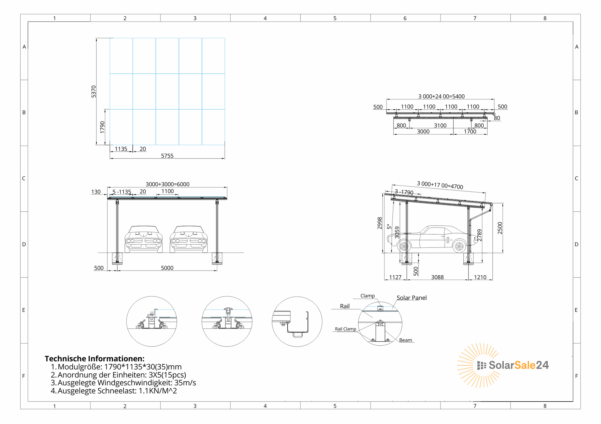
- Neigungswinkel: 5°
- Wasserdichte Struktur
- Farben: Silber
- Material: Aluminium 6005-T5
- Garantie: 10 Jahre
- Lebensdauer: 25 Jahre
- Zertifizierung: ISO9001/CE/SGS/UL
- Maximale Windgeschwindigkeit 35 m/s
- Maximale Schneemenge von 1.1 kN/m²
Hinweis: Das Fallrohr der Regenrinne besteht derzeit aus einem weißen Kunststoffrohr, das du bei Bedarf individuell austauschen kannst.
Growatt Wechselrichter:
MOD-TL3-XH(BP), 4 kW
- Batteriefähig (Battery Ready): APX HV Battery System mit 5-30 kWh kann angeschlossen werden
- Hoher Wirkungsgrad: Max. 98,6% | Europäischer Wirkungsgrad 98,1%
- Hoher Sicherheitsstandard: Aktiver Lichtbogenschutz (AFCI) zur Vermeidung von Brandrisiken | Überspannungsschutz Typ II (DC- und AC-Seite) | Fehlerstrom- und Erdschlussüberwachung
- Zwei MPP-Tracker: Großer MPPT-Spannungsbereich (140–1000 V), der verschiedene PV-Modultypen unterstützt
- Backup-Ausgang: Für Stromversorgung im Falle eines Netzausfalls | optionale Backup-Box benötigt!
- Inklusive Smart Meter: Zur intelligenten Eigenverbrauchsregelung
Growatt Speicher:
APX HV (optional)
- Leistungsmodul: APX 98020-P1 / APX 98034-P2
- Batteriemodul: APX 5.0P-B1
- Batteriekapazität: 5 kWh je Modul (erweiterbar auf bis zu 30 kWh)
- Nennspannung: 650 V
- Batteriespannungsbereich: 600 - 980 V
- Batterietyp: Kobaltfreies Lithium-Eisen-Phosphat (LiFePO4)
- Schutzklasse: IP66
- Garantie: 10 Jahre oder 6.000 Ladezyklen
450W Solarmodule
- Modulanordnung: Vertikal 3x5 (Insgesamt 15 Solarmodule)
- Bifaziale Glas/Glas Full-Black Solarmodule
- Wirkungsgrad: 22,5%
- Maße: 1762 x 1134 x 30mm
- Gewicht: 24,4kg
- Glasdicke je Seite: 2mm
- Produktgarantie: 15 Jahre
- Leistungsgarantie: 30 Jahre
- Max. Systemspannung: 1500V DC
- Kabellänge: 1,2m
- Stecker: MC4-EVO 2A
- Produktbezeichnung: HN18RN-54HT450W
Growatt Wallbox: THOR11/22AS-P (optional)
- Kompatibel mit allen E-Auto-Marken
- Perfekte Integration in PV-Systeme: Laden mit überschüssigem Solarstrom
- App-Steuerung & smarte Ladeplanung
- Robustes IP65-Design: Für den Innen- und Außeneinsatz
- RFID, App & Plug&Charge-Ladefreigabe
- Kommunikation via WiFi, Ethernet oder optional 4G
- Fest verbautes 5 m Ladekabel (Typ 2)
- 6 mA DC-Fehlerstromschutz integriert
- Geeignet für Wand und Standsäulen-Montage (optional)
/DC-Überspannungsschutz (optional)
- Maximale Gleichspannung des Systems: 500V DC
- Maximaler Eingangsstrom für jeden String: 15 A
- Maximale Eingangsstrings: 2
- Maximaler Ausgangsschalterstrom: 20/32 A
- Blitzschutz-SPD nach EN61643-11/IEC 61643-11, Typ2/Klasse II
- Nennentladestrom In (8/20 μs): 20 kA
- Max. Entladestrom Imax (8/20 μs): 40 kA
- Spannungsschutzniveau (Up): <2.5 kV
- Schutzgrad: IP65
- Betriebstemperatur: -25°C - 55°C

Ein DC-Überspannungsschutz (oder "DC-Kombinierer") ist bei sämtlichen PV-Anlagen, außer bei Balkonkraftwerken, vorgeschrieben!*
Das könnte Ihnen auch gefallen
Spezifikationen
| Farbe | Schwarz, Silber |
| Batterie | ohne Batterie, 5 kWh, 10 kWh |
| Wallbox | ohne Wallbox, 11 kW, 22 kW |
| DC-Überspannungsschutz | ohne DC-Überspannungsschutz, 500V |
| Stichwörter | |
|---|---|
| Stichwörter | |
Ihr dynamisches Snippet wird hier angezeigt ...
Diese Meldung wird angezeigt, weil Sie weder einen Filter noch eine Vorlage zur Verwendung bereitgestellt haben.
To install this Web App in your iPhone/iPad press
and then Add to Home Screen.





















